各店おすすめ物件(防府・売買)
分譲住宅
掲載日 2025.10.09
【新築分譲住宅】クレイドルガーデン防府市牟礼第3-2号棟 4LDK 2,180万円
★オール電化住宅。暮らしを広げるルームバルコニー。
- 販売価格
- 2,180 万円
- 所在地
- 防府市大字牟礼307番12・13・14
- 間取り
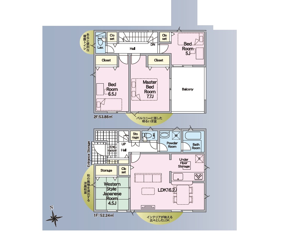
- 4LDK
- 学校区
- 牟礼小・牟礼中
- 交通
- 柳川バス停から徒歩7分
物件詳細情報
概要
| 物件種別 | 分譲住宅 |
|---|---|
| 物件名 | 【新築分譲住宅】クレイドルガーデン防府市牟礼第3-2号棟 4LDK |
| 所在地 | 防府市大字牟礼307番12・13・14 |
| 面積 | 地積:211.82㎡(64.08坪) 延床面積:106.10㎡(32.09坪)ルーフバルコニー 除外面積96.38㎡ |
| 間取り | 4LDK |
| 構造 | 木造2階建 |
| 完成年月日 | 令和7年12月 |
| 販売価格 | 2,180 万円 |
| 引き渡し | 相談 |
| 取引形態 | 媒介 |
|---|---|
| 建築確認番号 | 第R07SHC115293号 |
| 備考 | 設備:中国電力・公営水道・浄化槽(オール電化) ナビ表示:防府市大字牟礼310 付近 バルコニー面積9.72㎡ マイホームご購入は人生の大切なご決断です。 気になる点は何でもお気軽にご相談ください。 当社スタッフが、ご納得いただけるまでご相談をお受けいたします! 〒747-0037 防府市八王子2丁目3-6 株式会社エミアス防府支店 売買専用フリーダイヤル 0120-744-820 |
























