各店おすすめ物件(防府・売買)
分譲住宅
掲載日 2025.12.08
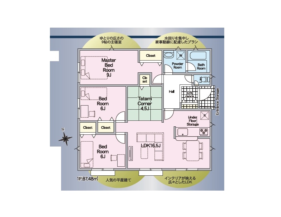
【新築分譲住宅】クレイドルガーデン防府市沖今宿第4-1号棟 3LDK+タタミコーナー 2,380万円
★オール電化の平家建
- 販売価格
- 2,380 万円
- 所在地
- 防府市沖今宿1丁目3653番5・3653番13・3653番14の一部
- 間取り
- 3LDK+タタミコーナー
- 学校区
- 牟礼南小・国府中
- 交通
- 牟礼・岸津バス停から徒歩11分
物件詳細情報
概要
| 物件種別 | 分譲住宅 |
|---|---|
| 物件名 | 【新築分譲住宅】クレイドルガーデン防府市沖今宿第4-1号棟 3LDK+タタミコーナー |
| 所在地 | 防府市沖今宿1丁目3653番5・3653番13・3653番14の一部 |
| 面積 | 地積:431.95㎡(130.66坪).番地3653-14:4.59㎡持ち分1/2 延床面積:87.48㎡(26.46坪) |
| 間取り | 3LDK+タタミコーナー |
| 構造 | 木造平家建 |
| 完成年月日 | 令和8年3月 |
| 販売価格 | 2,380 万円 |
| 引き渡し | 相談 |
| 取引形態 | 媒介 |
|---|---|
| 建築確認番号 | 第R07SHC123152号 |
| 備考 | 設備:中国電力・公営水道・公共下水(オール電化) ナビ表示:防府市沖今宿1丁目17-41 付近 駐車場:3台 マイホームご購入は人生の大切なご決断です。 気になる点は何でもお気軽にご相談ください。 当社スタッフが、ご納得いただけるまでご相談をお受けいたします! 〒747-0037 防府市八王子2丁目3-6 株式会社エミアス防府支店 売買専用フリーダイヤル 0120-744-820 |























