各店おすすめ物件(下関・売買)
分譲住宅
掲載日 2026.01.23
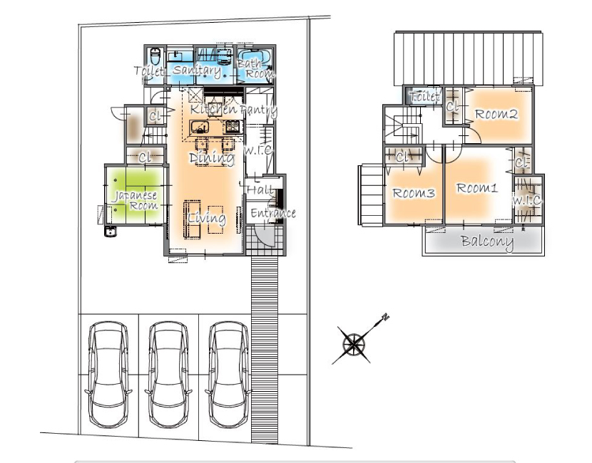
◆1/24(土)・25(日)予約制見学会開催♪ブールガーデン彦島本村町1号地【4LDK+WIC×3+ルーフバルコニー+外部収納】3,680万円(新築)◆


17.5帖のリビングには、お洒落な照明やエコカラットを採用し、雰囲気のある洗練された空間を演出♪リビング階段で家族のつながりも感じられます♪
リビングと隣接した和室は、家族のくつろぎスペースとしてはもちろん、急な来客時の客間やお子さまの遊び場としても大活躍♪
玄関ホールからキッチンへ続く大容量の収納!帰宅後アウターを掛けるハンガーパイプ付♪L型可動棚収納はパントリーとしても活躍します♪
グレーのアクセントクロスが空間に落ち着いた雰囲気を演出する、おしゃれなトイレ。最新の温水洗浄便座を採用し、使い心地も快適です。扉付きの収納棚を備えているため、小物や掃除用品もすっきりと片付きます♪
ガラスモザイクで装飾したグレージュの造作洗面♪三面鏡は小物などがたっぷり収納できます♪見た目もかわいいお洒落な洗面所です♪
洗面所と脱衣所が分かれたサニタリールーム。室内干しスペースや作業台も確保し、天候に左右されず洗濯ができるのはもちろん快適な家事動線を叶える機能的な空間です♪
浴室には、ウルトラファインバブル給湯器を採用。マイクロバブルによって白く濁ったお湯が全身を包み込み、まるで温泉のような心地よさを毎日のバスタイムで味わえます。皮脂汚れをやさしく落とし、肌もすっきり♪
リビング階段横には、日用品や掃除道具の収納に便利な収納スペースを確保。反対側の壁には、浴室の追い焚きボタンやモニターホンなど各種スイッチ類を集約し、使いやすさにもこだわった設計です♪
主寝室は、落ち着きのあるプライベート空間♪ウォークインクローゼットに加え、通常のクローゼットも備えており、衣類や季節物、小物までしっかりと収納可能♪空間をすっきり保てるため、家具の配置も自由自在♪
約1.8畳のゆとりあるウォークインクローゼットは。衣類はもちろん、季節物の収納や小物整理にも十分な広さを確保し、機能性とデザイン性を両立させています。主寝室とつながる快適な収納スペースです。
玄関には収納力のあるシューズボックスを設置♪鍵やお花、ディフューザーなどを置ける便利なスペースもあり、機能性とちょっとした見せる楽しさを両立♪毎日の出入りが気持ちよくなる、すっきりとした空間です♪
外部収納は土間仕様。土汚れを気にせずアウトドア用品や屋外で使うお子様のおもちゃなどが収納できとっても便利♪もちろん照明もついています♪
◆敷地61坪♪収納力の高さと家事動線をとことん追求した令和の新築◆
- 販売価格
- 3,680 万円
- 所在地
- 下関市彦島本村町7丁目
- 間取り
- 4LDK+WIC×3+ルーフバルコニー+外部収納
- 学校区
- 本村小・玄洋中
- 交通
- ロータリーバス停徒歩2分
物件詳細情報
360°パノラマビュー
概要
| 物件種別 | 分譲住宅 |
|---|---|
| 物件名 | ブールガーデン彦島本村町1号地 |
| 所在地 | 下関市彦島本村町7丁目 |
| 面積 | 土地面積 202.95㎡(61.39坪)建物面積 104.75㎡(31.69坪) |
| 間取り | 4LDK+WIC×3+ルーフバルコニー+外部収納 |
| 構造 | 木造 ガルバリウム鋼板葺 2階建 |
| 完成年月日 | 令和8年1月 |
| 販売価格 | 3,680 万円 |
| 引き渡し | 相談 |
| 取引形態 | 売主 |
|---|---|
| 建築確認番号 | R6建確建住セ下第0324号 |
| 備考 | *中国電力、上下水道、都市ガス *Low-eペアガラス、食器洗浄乾燥機、浴室換気乾燥暖房機、2Fトイレ、面格子3箇所(浴室:ルーバー)、 1Fシャッター雨戸、リビングエアコン1台、玄関扉スマートキー、和室・脱衣所室内金物、マイクロバブルバスユニット、ウルトラファインバブル給湯器 *住宅設備10年保証 *土砂災害警戒区域 *高潮浸水想定区域(0.5m~3m未満の区域) |



















