各店おすすめ物件(下関・売買)
分譲住宅
掲載日 2025.11.29
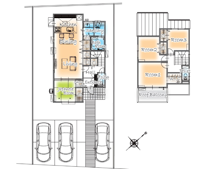
◆11/29(土)・30(日)予約制見学会開催♪ブールガーデン彦島本村町2号地【4LDK+WIC+ルーフバルコニー】3,660万円(新築)◆


家族との会話が弾む対面キッチン♪お洒落な吊り下げ照明を採用し、空間を優しく演出♪背面にはカップボードが備え付けられているので、収納力も◎♪
こだわりのエコカラットが印象的なリビング♪デザイン性と機能性を兼ね備え、空気を綺麗に保ちながら、空間にさりげない満足感をプラス♪
リビングには用途に合わせて使い分けられる収納を3カ所設置♪日用品や雑貨、おもちゃなどをすっきりしまえて、生活感を感じさせない快適な空間に。片付けがしやすく、家族皆が自然と整えられるリビング♪
縦長のLDKに隣接した和室は、引き戸を開ければ一体化し、開放的な空間に♪地窓と吊り押入れを採用することで目線が抜け、広さを感じられるのもポイント♪
シンプル操作で使いやすいシングルレバー式シャワー水栓を採用♪三面鏡にはたっぷりの収納スペースがあり、化粧品やケア用品などがすっきり片付きます♪
洗面所と脱衣所を分けた間取りで、家族の入浴中でも気兼ねなく洗面スペースを使える嬉しい設計。脱衣所にはハンガーパイプを備え、洗濯物の一時掛けや部屋干しにも便利です♪
浴室には、ウルトラファインバブル給湯器を採用♪マイクロバブルによって白く濁ったお湯が全身を包み込みます♪また、汚れが染みにくいお手入れ簡単なホーロークリーンパネルを採用♪
最新の温水洗浄便座付きで、快適・清潔なトイレ空間♪扉付きの収納スペースを設けており、トイレットペーパーや掃除用品などをすっきり収納可能♪
主寝室のウォークインクローゼットは、約1.5畳の広さを確保♪照明付きで中も見やすく、衣類や小物の整理がしやすい設計です♪毎日のコーディネートがスムーズになる、便利で快適な収納空間です♪
グレーのアクセントクロスが空間にほどよい落ち着きを与える主寝室♪ベッドや収納もゆったり配置できます。バルコニーにも直接出入りでき、朝の光や外の空気を気軽に感じられる心地よいお部屋です♪
主寝室から直接出入りできるルーフバルコニーは、水栓付きでお手入れや植物の水やりもラクラク♪ゆったりとした開放感のある空間で、プライベートなアウトドアタイムを楽しめます♪
玄関には収納力のあるシューズボックスを備え、靴まわりもすっきり整頓♪すぐ近くにトイレがあるため、帰宅時や来客時にも便利な動線設計です♪毎日の暮らしにちょうどいい快適さをプラスします♪
◆交通利便性の良い彦島本村町。新築全3棟、共働き世帯にオススメな間取り◆
- 販売価格
- 3,660 万円
- 所在地
- 下関市彦島本村町7丁目
- 間取り
- 4LDK+WIC+ルーフバルコニー
- 学校区
- 本村小・玄洋中
- 交通
- ロータリーバス停徒歩2分
物件詳細情報
360°パノラマビュー
概要
| 物件種別 | 分譲住宅 |
|---|---|
| 物件名 | ブールガーデン彦島本村町2号地 |
| 所在地 | 下関市彦島本村町7丁目 |
| 面積 | 土地面積 202.95㎡(61.39坪)建物面積 104.75㎡(31.68坪) |
| 間取り | 4LDK+WIC+ルーフバルコニー |
| 構造 | 木造 ガルバリウム鋼板ぶき 2階建 |
| 完成年月日 | 令和7年10月完成予定 |
| 販売価格 | 3,660 万円 |
| 引き渡し | 相談 |
| 取引形態 | 売主 |
|---|---|
| 建築確認番号 | R6建確建住セ下第0325号 |
| 備考 | *中国電力、上下水道、都市ガス *建物保証10年 *住宅設備10年保証 *マイクロバブルバスユニット、ウルトラファインバブル給湯器 *土砂災害警戒区域 *洪水浸水想定区域(0.5m~3m未満の区域) |



















