各店おすすめ物件(下関・売買)
分譲住宅
掲載日 2025.11.29
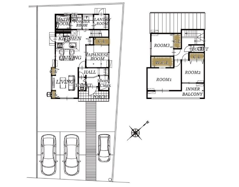
◆11/29(土)・30(日)予約制見学会開催♪ブールガーデン彦島本村町3号地【4LDK+WIC+ランドリールーム+シューズクローク+インナーバルコニー】3,680万円(新築)◆

玄関には、たっぷり収納できるシューズクローク設置♪洗濯・乾燥・収納がスムーズにこなせるランドリールーム付きで、家事効率アップ!天候に左右されにくいインナーバルコニー完備♪魅力満載の4LDK♪
ダークグレーのエコカラットがアクセントになった18.5帖の開放的なリビング♪収納も3箇所あり、すっきりとした暮らしが叶います♪
リビングと隣接した和室は、モダンな和の雰囲気を感じさせる空間です。引き戸を開ければ、リビングと自然につながり、空間に統一感をもたらします♪
グレーのアクセントクロスが落ち着いた雰囲気を演出するトイレ。窓から差し込む自然光で明るく清潔感あふれる空間に♪扉付き戸棚もあり、収納力が高く生活感を隠してすっきり使えます♪
勝手口がついているため、天気の良い日はすぐに洗濯物を外に干せます♪ハンガーパイプは室内干しに便利で、急な雨の日や夜間の洗濯にも対応可能♪収納ボックスが備え付けられているため、整理整頓もできます♪
自然光が入る採光窓付きで明るく清潔感のある空間♪三面鏡の収納力が高く、身支度も快適♪水温調整も簡単でお湯の無駄遣いも防ぐシングルレバー水栓♪
洗面所と脱衣所が独立しているため、家族が同時に使いやすく混雑を避けられます♪さらに奥にはランドリールームが直結しており、洗濯から乾燥、収納までの家事動線がスムーズで使い勝手の良いパウダールームです♪
ウルトラファインバブル給湯器を備えた浴室では、マイクロバブルのやさしい泡が肌を包み込みます♪お子さまから大人まで、家族みんながリラックスできる癒しのバスタイムを実現♪
お子さまからご年配の方まで安心して使える、手すり付きの階段♪足元を優しく照らす照明も設置し、夜間の上り下りも安心です♪家族みんなが安全で快適に過ごせる工夫が詰まった設計です♪
シンプルな設計でインテリアの自由度が高いお部屋♪備え付けのクローゼットで収納も十分で、照明付きです♪成長に合わせて学習スペースや趣味の部屋として、長く使えるフレキシブルな一室♪
インナーバルコニーへ直接出入りできる主寝室は、自然の光や風を取り込める心地よい空間♪衣類や小物をたっぷり収納できるウォークインクローゼットも備えており、室内をすっきり保てます♪
屋根付きのインナーバルコニーは、雨の日でも安心して洗濯物が干せる便利な空間♪2部屋から出入りでき、日々の生活動線もスムーズ♪水栓付きでお掃除やガーデニングにも活用でき、多目的に使えるスペース♪
玄関には、家族全員の靴がたっぷり収納できるシューズクロークを完備♪コートやアウターを掛けられるハンガーパイプ付きで、外出・帰宅の動線もスムーズ♪
◆家事の全てを室内で完結できる最新の間取♪共働き世帯向けの新築住宅◆
- 販売価格
- 3,680 万円
- 所在地
- 下関市彦島本村町7丁目
- 間取り
- 4LDK+WIC+ランドリールーム+シューズクローク+インナーバルコニー
- 学校区
- 本村小・玄洋中
- 交通
- ロータリーバス停徒歩2分
物件詳細情報
360°パノラマビュー
概要
| 物件種別 | 分譲住宅 |
|---|---|
| 物件名 | ブールガーデン彦島本村町3号地 |
| 所在地 | 下関市彦島本村町7丁目 |
| 面積 | 土地面積 202.93㎡(61.38坪)建物面積 104.88㎡(31.73坪) |
| 間取り | 4LDK+WIC+ランドリールーム+シューズクローク+インナーバルコニー |
| 構造 | 木造 ガルバリウム鋼板ぶき 2階建 |
| 完成年月日 | 令和7年10月完成予定 |
| 販売価格 | 3,680 万円 |
| 引き渡し | 相談 |
| 取引形態 | 売主 |
|---|---|
| 建築確認番号 | R6建確建住セ下第0325号 |
| 備考 | *中国電力、上下水道、都市ガス *建物保証10年 *住宅設備10年保証 *マイクロバブルバスユニット、ウルトラファインバブル給湯器 *土砂災害警戒区域 *洪水浸水想定区域(0.5m~3m未満の区域) |



















