各店おすすめ物件(下関・売買)
マンション
掲載日 2025.12.21
アドバンス21宮の下Ⅲ【4LDK】1,680万円(売マンション)
平成15年築の鉄筋コンクリート造。総戸数24戸のマンションです。
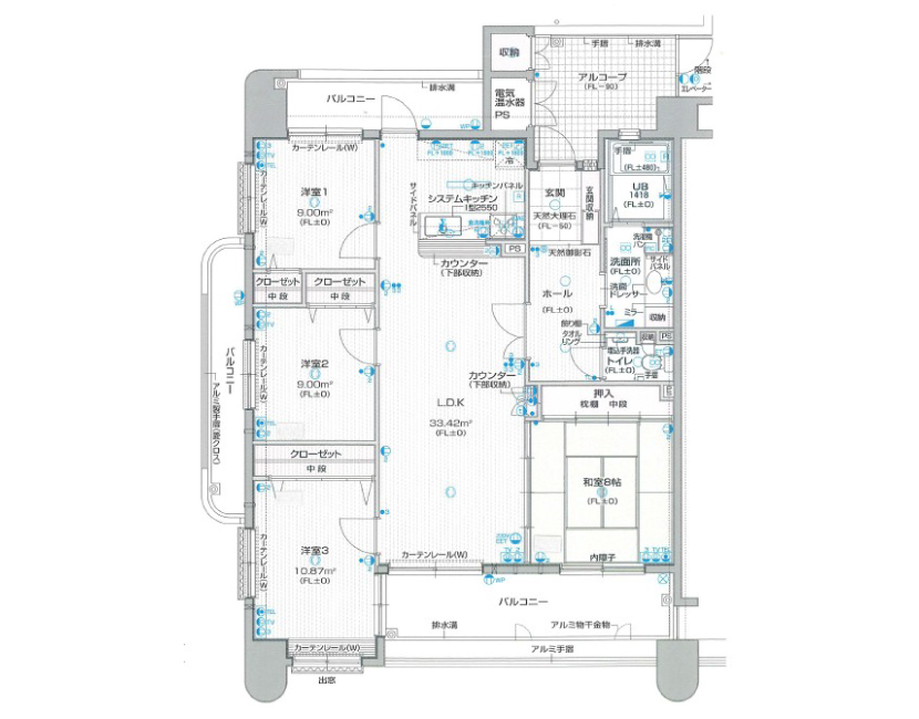
室内広々96.15㎡の4LDK。角部屋3面バルコニーの明るいお部屋です。
LDKは21帖。広くゆとりのある空間です。
キッチンは対面式。家事をしながらリビングが見渡せるので安心です。
和室は8帖。広い押し入れ完備で荷物が多い方もしっかり収納が出来ます。
7帖の個室は3面採光で明るく日当たりの良いお部屋です。
バルコニー面した個室は5.8帖。収納もあり明るいお部屋です。
北側5.8帖の個室。窓が2か所あり風通しの良いお部屋です。
トイレは温水洗浄便座付です。収納箇所もあり便利です。
収納力のある洗面台。洗面まわりがすっきりとして便利です。
浴室には換気が出来る窓があり、湿気がこもらないので安心です。
玄関スペースは広く、玄関収納完備。靴の多い方も安心です。
広くゆとりのある玄関アルコープには収納もあります。
南面のバルコニーは日当たりが良く、洗濯物を干すのに便利です。
◆3面採光バルコニーの角部屋マンションにペットと一緒に住みませんか?◆
- 販売価格
- 1,680 万円
- 所在地
- 下関市幡生宮の下町
- 間取り
- 4LDK
- 学校区
- 生野小・山の田中
- 交通
- 宮の下バス停徒歩3分
物件詳細情報
概要
| 物件種別 | マンション |
|---|---|
| 物件名 | アドバンス21宮の下Ⅲ |
| 所在地 | 下関市幡生宮の下町 |
| 面積 | 建物面積 96.15㎡(29.09坪)バルコニー面積 23.13㎡(6.99坪) |
| 間取り | 4LDK |
| 構造 | 鉄筋コンクリート造 陸屋根 9階建 2階部分 |
| 完成年月日 | 平成15年8月 |
| 販売価格 | 1,680 万円 |
| 引き渡し | 相談 |
| 取引形態 | 仲介 |
|---|---|
| 建築確認番号 | - |
| 備考 | *中国電力、上下水道、オール電化 *ペット可 ◆担当者おすすめポイント◆ POINT1 バス停まで徒歩3分。通勤・通学に利用する方に便利な立地です。 POINT2 ゆめマート幡生店まで徒歩5分。毎日のお買い物も安心です。 POINT3 コンビニまで徒歩3分。急なお買い物も困りません。 POINT4 JR幡生駅まで徒歩12分。平坦地なので徒歩でも楽々です。 |



















