各店おすすめ物件(宇部・売買)

一戸建て 掲載日 2026.03.22

【山陽小野田市小野田中古戸建 3LDK 1,390万円】 

【令和8年4月内外装リフォーム完了】

本山小学校徒歩13分♪『日本の夕陽百選』に選ばれたきららビーチや、360度パノラマ風景や桜の名所である竜王山公園など自然を身近に感じられる住環境が魅力です♪

販売価格
1,390 万円
所在地
山陽小野田市小野田234-4
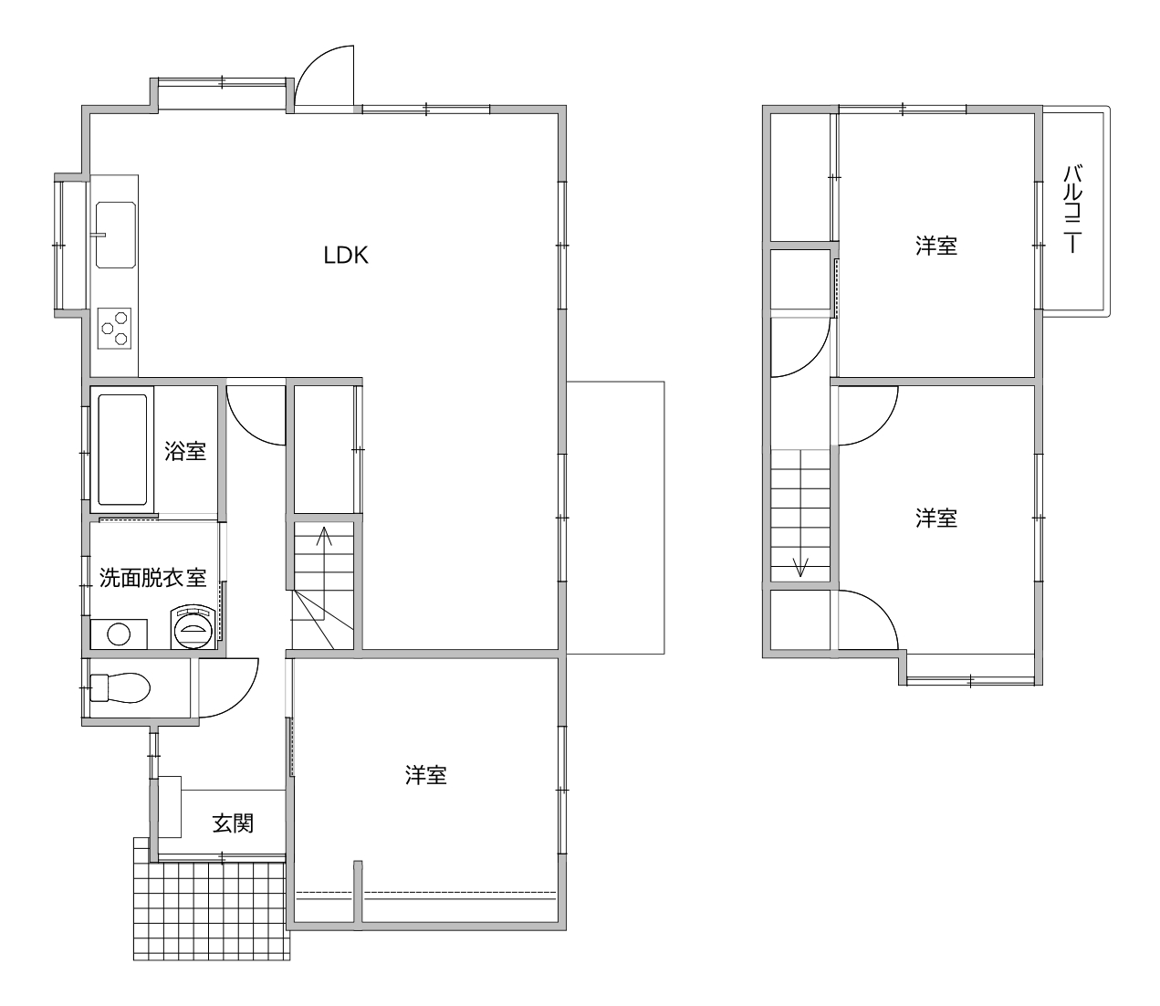
間取り
3LDK
学校区
本山小学校/竜王中学校
交通
JR小野田線「長門本山」駅徒歩3分
システムキッチンバルコニー付学校近く敷地内駐車場有り駅近く

物件詳細情報

概要

物件種別一戸建て
物件名山陽小野田市小野田中古戸建
所在地山陽小野田市小野田234-4
面積敷地面積:237.21㎡(71.75坪)/建物面積99.72㎡(30.16坪)
間取り3LDK
構造木造セメント瓦葺2階建
完成年月日平成4年3月
販売価格1,390 万円
引き渡し相談
取引形態売主
建築確認番号-
備考-

周辺マップ

一覧へ戻る