各店おすすめ物件(山口・売買)
マンション
掲載日 2025.09.30
【売マンション】サンパーク山口セントラルレジデンス 202号室 2,750万円
築浅マンション
山口市立白石小学校まで450m(徒歩7分)
山口市立白石中学校まで550m(徒歩8分)
- 販売価格
- 2,750 万円
- 所在地
- 山口市中央3丁目1-41
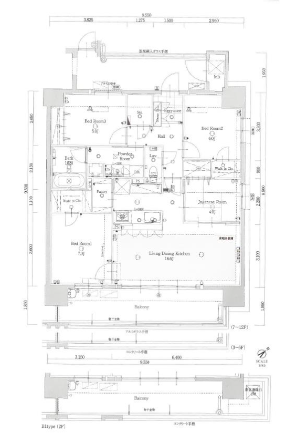
- 間取り
- 3LDK
- 学校区
- 白石小・白石中
- 交通
- JR山口線「山口駅」より徒歩13分
物件詳細情報
概要
| 物件種別 | マンション |
|---|---|
| 物件名 | 【売マンション】サンパーク山口セントラルレジデンス 202号室 2,750万円 |
| 所在地 | 山口市中央3丁目1-41 |
| 面積 | 専有面積壁芯 90.72㎡ (27.44坪) |
| 間取り | 3LDK |
| 構造 | 鉄筋コンクリート(RC)11階建 |
| 完成年月日 | 2020年11月 |
| 販売価格 | 2,750 万円 |
| 引き渡し | 相談 |
| 取引形態 | 仲介 |
|---|---|
| 建築確認番号 | - |
| 備考 | ●インターネット使用料月額1,650円/月 ●管理費月額13,100円/月●修繕積立金6,400円/月 |





















