各店おすすめ物件(香椎・売買)
一戸建て
掲載日 2025.12.11
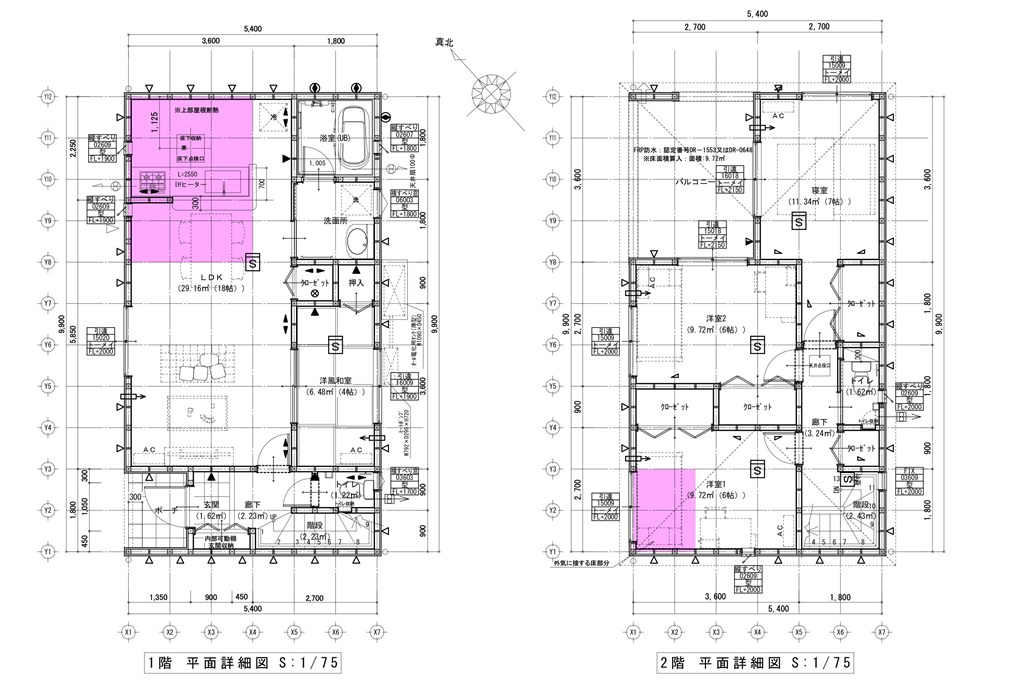
糟屋郡須恵町須恵新築戸建【4LDK】3,388万円
■角地に位置するモダンテイストな外観♪駐車場は3台可能♪
■須恵駅徒歩8分・小学校徒歩11分・コンビニやスーパーも公園等生活施設も徒歩圏内の好立地!
■インナーバルコニー付で雨の日の洗濯も可能♪
■耐震性能等級3、断熱性能等級5の経済的なお住まい♪
- 販売価格
- 3,388 万円
- 所在地
- 糟屋郡須恵町須恵
- 間取り
- 4LDK
- 学校区
- 須恵第二小・須恵東中
- 交通
- JR香椎線「須恵」駅徒歩約8分
物件詳細情報
概要
| 物件種別 | 一戸建て |
|---|---|
| 物件名 | 糟屋郡須恵町須恵新築戸建 |
| 所在地 | 糟屋郡須恵町須恵 |
| 面積 | 土地面積 152.17㎡(46.03坪)/建物面積 104.49㎡(31.61坪) |
| 間取り | 4LDK |
| 構造 | 木造 2階建 |
| 完成年月日 | 令和8年2月中旬完成予定 |
| 販売価格 | 3,388 万円 |
| 引き渡し | 相談 |
| 取引形態 | 仲介 |
|---|---|
| 建築確認番号 | 第 R07SHC120981 号 |
| 備考 | ・Low-e複層ガラス |























.jpg)

.jpg)
.jpg)
