リノベーション

中古戸建×リノベーション 掲載日 2020.07.18

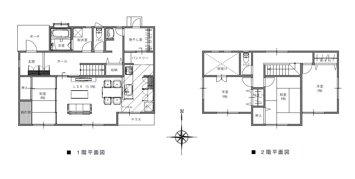
ラクラク家事動線と+αの間取りへリノベーション

ラクラク家事動線と+αの間取りへリノベーション

所在地
福岡県
間取り
4LDK
築年数
築31年
4LDKナチュラル吹抜け築31~40年

間取りの詳細

リノベーションをお考えの方は、ぜひエミアスまでお問い合わせください!リノベーションをお考えの方は、ぜひエミアスまでお問い合わせください!

営業時間/09:00~18:00
定休日/水曜日 第3火曜日 土日を除く祝祭日

メールでお問い合わせする