各店おすすめ物件(下関・売買)
分譲住宅
掲載日 2026.05.16
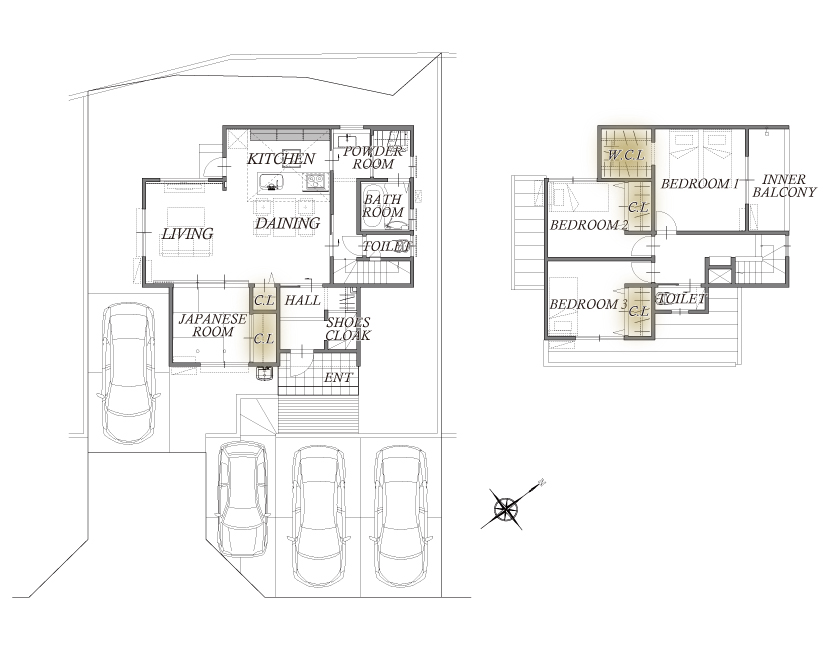
◆ブールガーデン長府印内町2号地【4LDK+WIC+インナーバルコニー】3,850万円◆
◆天候を気にせず使えるインナーバルコニー♪家事動線を意識した令和の新築◆
- 販売価格
- 3,850 万円
- 所在地
- 下関市長府印内町
- 間取り
- 4LDK+WIC+インナーバルコニー
- 学校区
- 豊浦小・長府中
- 交通
- 前八幡バス停徒歩3分
物件詳細情報
概要
| 物件種別 | 分譲住宅 |
|---|---|
| 物件名 | ブールガーデン長府印内町2号地 |
| 所在地 | 下関市長府印内町 |
| 面積 | 土地面積 248.81㎡(75.26坪)建物面積 105.57㎡(31.93坪) |
| 間取り | 4LDK+WIC+インナーバルコニー |
| 構造 | 木造 ガルバリウム鋼板葺 2階建 |
| 完成年月日 | 令和8年4月末完成予定 |
| 販売価格 | 3,850 万円 |
| 引き渡し | 相談 |
| 取引形態 | 売主 |
|---|---|
| 建築確認番号 | R7建確建住セ下第0235号 |
| 備考 | ◆担当者おすすめポイント◆ POINT1 駐車並列4台可能♪敷地60坪越え、お庭もしっかりあるゆったりした広さ。 POINT2 LDKは単体で18畳。隣接した和室を開放すれば22.5畳の大広々空間となります。 POINT3 洗面室と脱衣室を分け家事効率をアップ!洗濯物は室内で干せます。 POINT4 リビング階段で子育世帯にも安心。空調も考え階段室をセパレートした間取り。 POINT5 ウルトラファインバブル給湯器を設置。浴槽はマイクロバブルで白濁のお湯を楽しめます。 *中国電力、上下水道、都市ガス *建物保証10年 *地盤保証20年 *住宅設備保証10年 *高潮想定浸水区域(3~5m) *私道 258㎡ 持分1/3 |


































