
快適に暮らせる
ホテルライクなお家。
好評分譲中
ー 文関小学校 徒歩21分(約1644m)ー
- 販売価格
- 3,590万円(税込)
駐車3台分完備
ランドリールーム付の
機能的でデザイン性の高い新築住宅

4LDK+WIC+ランドリールーム+インナーバルルコニー/駐車3台

アーバンモダンスタイルの
デザインが映える
ホテルライクで上質な住空間。
共働き・子育て世代が
「欲しい!」をつめこんだ
オンリーワン住宅。

最新のトレンドを研究し現代の生活スタイルに沿った形で動線を考え作りこんだ、おしゃれと家事楽を両立したお家が完成しました。
下関インター至近でアクセス良好。コンビニ徒歩約7分、サンキュードラッグやスーパーなど周辺環境が整った立地。
共働き・子育て世代にとって使いやすい生活動線や収納の配置等、心地よいデザインでゆったり快適に暮らせます♪


一線画すデザイン住宅
一級建築士とコーディネーターがプラン・設計した珠玉の新築。他の家にはない、オリジナリティーあふれる邸宅。インテリア、外観、空間構成までを、すべてひとつのデザインコンセプトでトータルコーディネート。


安心安全な子育て環境
保育園まで徒歩21分・小学校まで徒歩21分・中学校まで徒歩23分。


お買物もラクラク
ゆめマート幡生店・ゆめマート下関店・サンキュードラッグなどが揃いお買物も便利な立地。
生活施設が身近に点在し、日々の暮らしが快適です。


プライバシーを守り、安心感のある住まい。
玄関が通りから見えない外観設計で、プライバシーをしっかり確保。通行車や通行人の視線を気にせず、安心して暮らせます。
収納・ハンガーパイプ
・物干金物付のランドリールーム!
収納・ハンガーパイプ・物干金物付のランドリールーム!

キッチン・洗面所から
出入りできる
2Way動線のランドリールーム♪
洗濯・干す・畳むの動作が一部屋で完結できるよう、ランドリールームには物干し(2箇所)や枕棚+ハンガーパイプ、収納を設置。忙しい奥様をしっかりサポートします。
来客時も安心
来客時も安心
駐車場3台可能!急な来客があっても安心です。
3台分の駐車スペースは急な来客にも対応できます。自転車やバイクなどを所有している方も安心です。
収納豊富な間取り!
収納豊富な間取り!
リビング収納
WICがついた
収納豊富なお家♪
開放感ある広々リビングに収納を完備!小物などが収納でき、いつも綺麗な空間が保てます♪主寝室には3畳のウォークインクローゼット付♪
ご主人用、奥様用と分けて使うことも可能です。
収納豊富でスッキリ快適に暮らせます♪
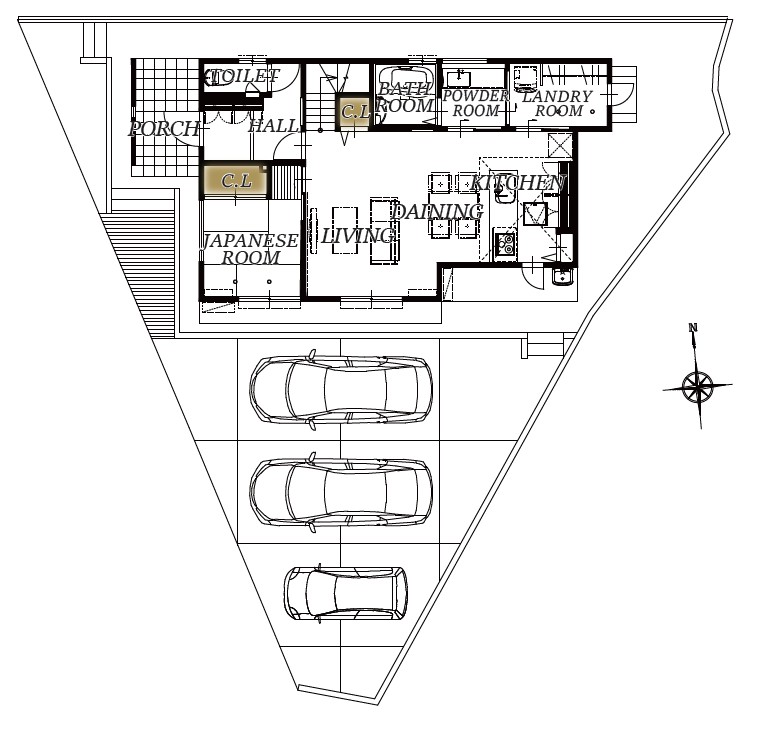
FLOOR PLAN間取り


4LDK +WIC+ランドリールーム+インナーバルコニー
【面積について】
■ 土地面積 201.17㎡(60.85坪)
■ 建物面積 107.64㎡(32.56坪)

■ 1階面積 45.54m²(13.78坪)
■ 駐車場3台可

■ 2階:62.10㎡(18.78坪)

機能性とデザイン性に特化した
エミアスの新築住宅
開放感あるオープン対面キッチン♪
明るい4.5畳の和室♪FACILITY設 備
暮らしをラクに!
設備にもこだわったお家。
お手入れのしやすい水回り。暮らしをラクにする最新設備を取り入れたこだわりのお家です。キッチンは開放感あるオープンキッチン♪お料理をしながらリビングを見渡せます。
SECURITY保証•構造
長く暮らすための構造。
安心できる保証。
在来木造軸組み工法を採用し、長期間に渡って精度を保てるようにしました。
また、住宅瑕疵担保責任保険にも加入しているため、お困りごとがあればお気軽にご相談ください。
AREAエリア情報
- 見学は完全予約制!住所はこちら
-
下関市椋野町3丁目8付近
【近隣マップ】
【Googleマップ】
OUTLINE物件概要
| 物件種別 | 分譲住宅 |
|---|---|
| 物件名 | ◆下関市椋野町3丁目2号地【4LDK+WIC+ランドリールーム+インナーバルコニー】3,590万円(新築)◆ |
| 所在地 | 下関市椋野町3丁目 |
| 面積 | ■ 土地面積 201.17㎡(60.85坪) ■ 建物面積 107.64㎡(32.56坪) |
| 間取り | 4LDK +WIC+ランドリールーム+インナーバルコニー |
| 構造 | 木造 ガルバリウム鋼板葺 2階建 |
| 完成年月日 | 令和7年11月完成予定 |
| 販売価格 | 3,590 万円 |
| 引き渡し | 相談 |
| 取引形態 | 売主 |
| 備考 | *洪水浸水想定区域(0.5mから3mの区域) *建築確認番号 R6建確建住セ下第0350号 *中国電力、上下水道、オール電化 *建物保証10年 *地盤保証20年 *住宅設備保証10年 担当者おすすめポイント POINT1 広さ60坪、敷地の形状を上手く活用し駐車並列3台以上を確保♪ POINT2 洗面脱衣室の他にランドリールームを3畳分造作。お洗濯のストレスを大幅に削減できます♪ POINT3 LDKは広々18畳♪ダブルウォークインを含め収納豊富な間取り。 POINT4 キッチンは間接照明付きの下がり天井仕様。リビング階段で子育てに向いた間取りです。 POINT5 6畳分の広いインナーバルコニー。水道も完備しておりプール遊びもできます。お掃除もラクラクです。 |

-3.jpg)








